Bauplanung für das bulgarische Endlager für schwachradioaktive und kurzlebige mittelradioaktive Abfälle
Ein Konsortium aus Westinghouse Spain, der spanischen Endlagergesellschaft Enresa und der DBE TECHNOLOGY GmbH unterstützt das örtliche Unternehmen EQE Bulgaria AD, das von der staatlichen bulgarischen Gesellschaft für die Entsorgung radioaktiver Abfälle (SE-RAW) mit der technischen Auslegung des oberflächennahen Endlagers für schwachradioaktive und kurzlebige mittelradioaktive Abfälle (National Disposal Facility, NDF) am Standort Radiana in der Nähe des Kernkraftwerks Kozloduy beauftragt wurde. Ein wesentlicher Aspekt der beauftragten Arbeit ist der Nachweis der technischen Machbarkeit des NDF. Da als vorgesehener Baubeginn des Endlagers das Frühjahr 2016 angestrebt wird, konzentriert sich die aktuelle Projektarbeit, die von der DBE TECHNOLOGY GmbH organisiert wird, auf die Bauplanung.
Das NDF soll in 3 Phasen im Abstand von jeweils 20 Jahren errichtet werden. Nach Abschluss der ersten Phase wird das Endlager bereits vollständig betriebsbereit sein und in der Lage, 6.336 Abfallgebinde anzunehmen und endzulagern. Während der Phasen 2 und 3 wird sich die Endlagerkapazität des NDF um jeweils 6.336 Abfallgebinde erhöhen. Nach Abschluss der Einlagerung der Abfallbehälter wird die Anlage stillgelegt und eine mehrlagige technische Barriere als schützende Abdeckung über den Einlagerungskammern errichtet.
Eine wesentliche, anfängliche, logistische Herausforderung werden die fast 1 Million m³ Erde sein, die abgetragen und gehandhabt werden müssen, bevor die Bauarbeiten beginnen können. Um Umweltbeeinträchtigungen zu minimieren, soll die Erde, soweit möglich, am Stand-ort verbleiben.
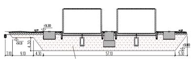
Eine andere Herausforderung ergibt sich aus der Notwendigkeit, die mechanischen Eigen-schaften des Bodens für den Bau zu verbessern. Ein 5 m dickes Löss-Zement-Auflager wird unterhalb der Einlagerungszellen sowie dem Gebäude für die Annahme der Abfälle und dem Bufferlager errichtet. Das Auflager unter den Einlagerungszellen enthält auch eingeschlossene Strukturen, wie Kontrollgänge für das Monitoring und Widerlagerbalken für die mobilen Dächer.
Die Bauplanung weist die Volumina des abzutragenden Bodens aus und stellt eine ausreichende Materialversorgung, z.B. mit großen Mengen trockenen und feuchten Zements im Hinblick auf Qualität und Menge, sicher. Weiterhin berücksichtigt der Plan das gleichzeitige Baumanagement für Hilfsgebäude und Endlagerzellen.

